Así será el nuevo centro de salud de Beniparrell
El edificio de 620 metros2 contará con dos accesos, un patio interior y estará elevado casi un metro para evitar inundaciones

Recreación virtual del nuevo centro de salud de Beniparrell. / A.B.
El conseller de Sanidad, Marciano Gómez, anunció en Beniparrell la construcción del nuevo centro de salud, una infraestructura muy reivindicada por el municipio que por fin se va a hacer realidad tras casi diez años de gestiones continuadas por parte del ayuntamiento, que inició los primeros pasos del proyecto alrededor del año 2015.
La ejecución de las obras del nuevo centro de salud ha sido adjudicada a la empresa Binaria Compañía General de Construcciones S.L., que será la encargada de llevar a cabo la construcción del edificio, de acuerdo con los criterios técnicos, de calidad y de seguridad establecidos en el proyecto, por una cantidad de 1.469.657,52€.
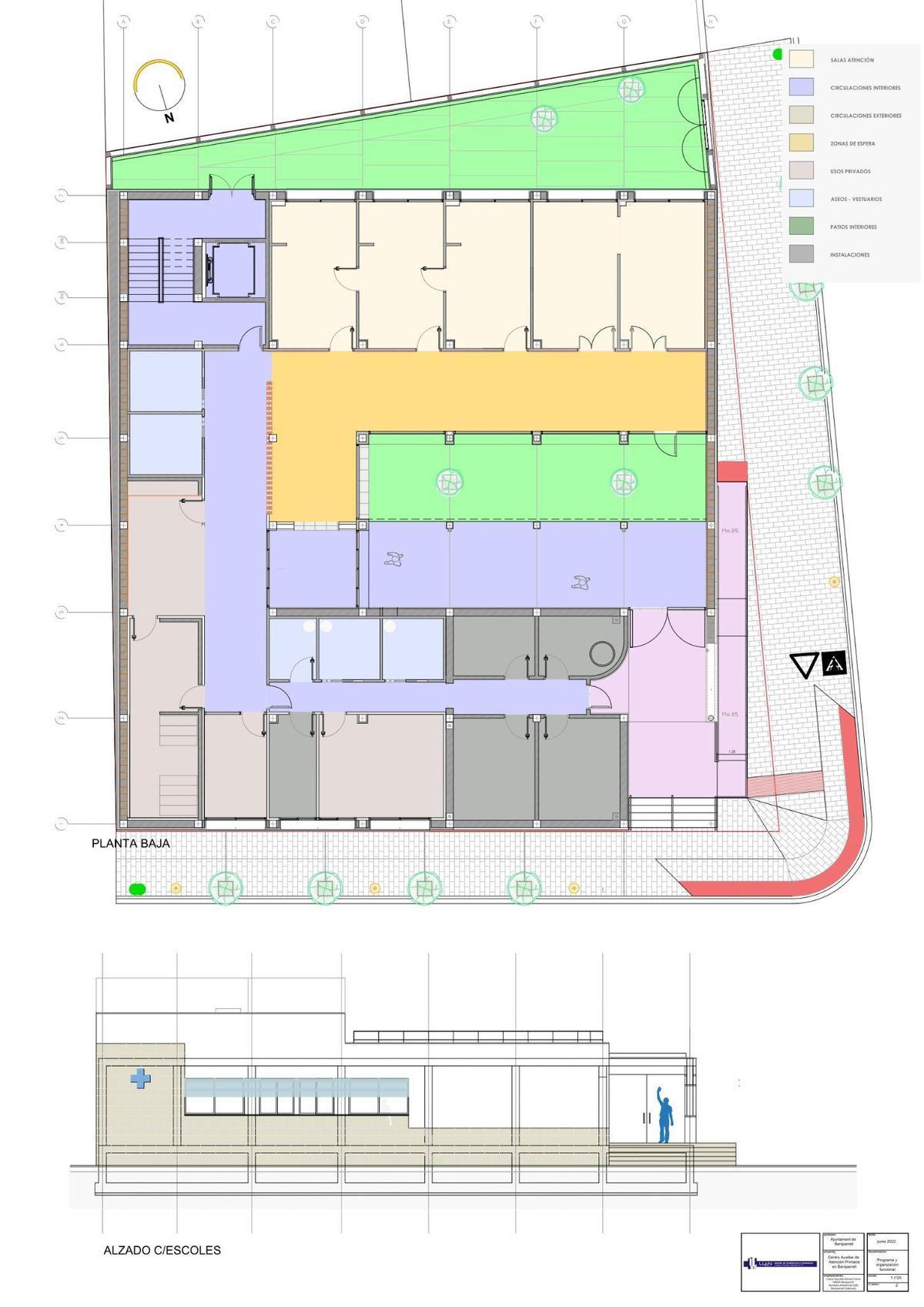
El resultado será un edificio de consumo energético casi nulo, con una superficie construida aproximada de 620,20 metros cuadrados, que se levantará sobre una parcela de 747,55 m². El centro se organiza en una única planta de geometría cuadrada, con una altura de cornisa de cuatro metros, y se sitúa 80 centímetros por encima de la rasante como medida de protección ante posibles episodios de inundación.
Iluminación natural y ventilación cruzada
El programa funcional se articula en forma de U alrededor de un patio central, complementado por un segundo patio lateral, hecho que garantiza iluminación natural y ventilación cruzada. El edificio contará con recepción central, consultas médicas, salas de espera, lavabos adaptados, zonas específicas para el personal sanitario, así como espacios técnicos, archivo, almacenes y una zona de residuos con acceso directo desde el exterior.
En materia de seguridad, el centro dispondrá de doble acceso: una entrada principal totalmente accesible mediante rampa y una segunda vía de evacuación conectada a una escala interior que permite tanto la salida a la vía pública como el acceso a la cubierta del edificio en caso de emergencia, de acuerdo con los criterios de protección civil y las exigencias derivadas de su ubicación.

Plano del centro de salud de Beniparrell. / A.B.
La Consellería de Sanidad será la encargada de contratar la dirección de obra, la dirección de ejecución y la coordinación de seguridad y salud, así como, si procede, la supervisión de los proyectos específicos de instalaciones.
Desde el Ayuntamiento de Beniparrell se subraya que el avance del proyecto es el resultado de años de trabajo sostenido, discreto y constante, atravesando diferentes etapas políticas y administrativas, con un único objetivo: dotar el municipio de una infraestructura sanitaria adecuada a las necesidades actuales de su población.
Con este nuevo centro de salud, Beniparrell da un paso decisivo hacia la mejora de la atención primaria, reduce la dependencia otros municipios y culmina un proceso iniciado hace casi una década que se acerca, finalmente, a su materialización.
Masaroca: "no ha sido un camino fácil"
El alcalde de Beniparrell, Voro Masaroca, ha destacado que “este proyecto es el resultado de casi diez años de trabajo constante por parte del Ayuntamiento, iniciado alrededor del año 2015, en los cuales nunca hemos dejado de defender la necesidad de un centro de salud digno para nuestro pueblo”.

El alcalde, Voro Masaroca y el conseller, Marciano Gómez, en el solar donde irá el consultorio auxiliar. / L-EMV
Masaroca ha subrayado que “no ha sido un camino fácil, puesto que hemos tenido que superar obstáculos urbanísticos, técnicos y administrativos muy complejos, pero siempre hemos tenido claro que la sanidad y el bienestar de la ciudadanía tenían que ser una prioridad”.
“Hoy estamos más cerca de ver hecho realidad un proyecto largamente esperado, que mejorará de manera notable la atención sanitaria en Beniparrell y que demuestra que la constancia, el trabajo riguroso y la colaboración entre administraciones acaban dando frutos”, ha concluido el alcalde.
- Los cines Yelmo niegan la entrada a alumnado de un IES porque la profesora lo comunicó en valenciano
- Salva de la dana a la anciana para la que trabajaba y le niegan los papeles por no estar empadronada
- Burjassot, Paterna, l’Eliana y San Antonio de Benagéber: las salidas de la CV-35 que se renovarán este año
- Las subidas del 100% del alquiler en València: 'Soy funcionario y mi casero me exige 1.200 euros al mes donde pagaba 600
- La Aemet confirma cuándo amainará el viento en la C. Valenciana: mientras tanto, estas serán las zonas más afectadas y con rachas más fuertes
- Fallas de València 2026: solo un día festivo y ningún puente para los trabajadores valencianos
- Se vende exclusivo piso con piscina privada en el barrio del Botànic de València
- La empresa Gespa, dirigida por la exmujer del alcalde de Paterna, vigilará fraudes laborales con detectives
